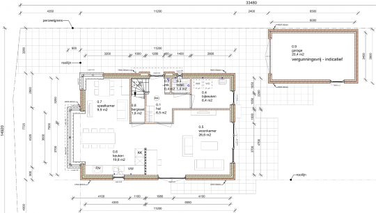
Plattegrond indeling begane grond - Nieuwbouw woonhuis Mr Rijkenstraat Veldhoven - BEELEN CS architecten Eindhoven